• New Cover Page
  • residential
  • commercial
  • institutional
  • planning
  • design
RODAR
  • New Cover Page
  • residential
  • commercial
  • institutional
  • planning
  • design

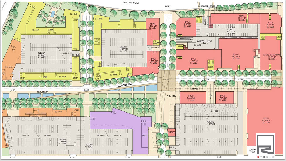
The Colony at Sharon Road

The Colony at Sharon Road is a master planning effort which encompass a site of approximately 27 acres located at Sharon Road in Charlotte, NC.  The design intention was to provide a multi-phased development on three parcels pursuant to the rezoning of the property.  This new mixed-use community will offer retail space of 178,000 rentable square feet, 1800 dwelling units in mid-rise and     low-rise buildings, and one or more 10-20 level high-rise structures for condominiums and a hotel.  Each urban block is developmentally self-supporting to allow for phasing flexibility.

 

01.jpg
02.jpg
03.jpg
04.jpg
05.jpg
06.jpg
07.jpg
08.jpg
09.jpg
10.jpg
11.jpg
12.jpg